グランカーサ板橋イースト
                                                    new
                                                更新日:2025-11-01
                    
                    物件画像
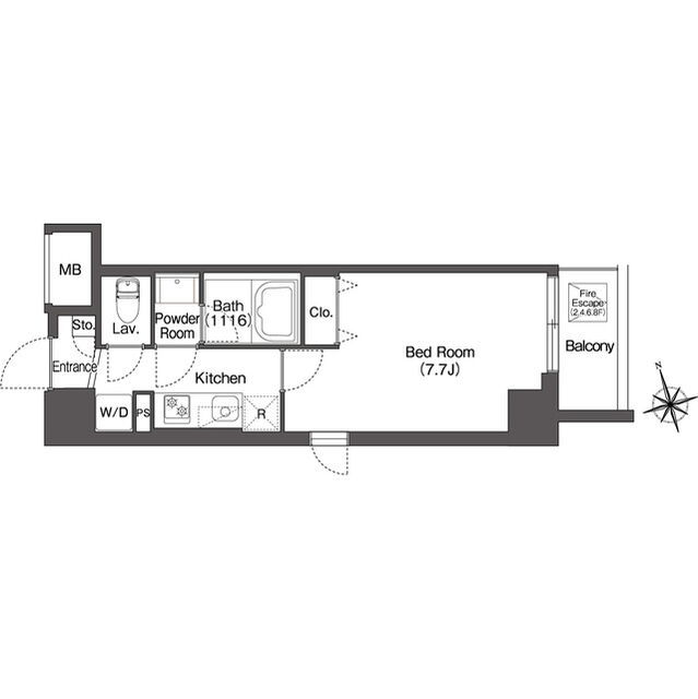
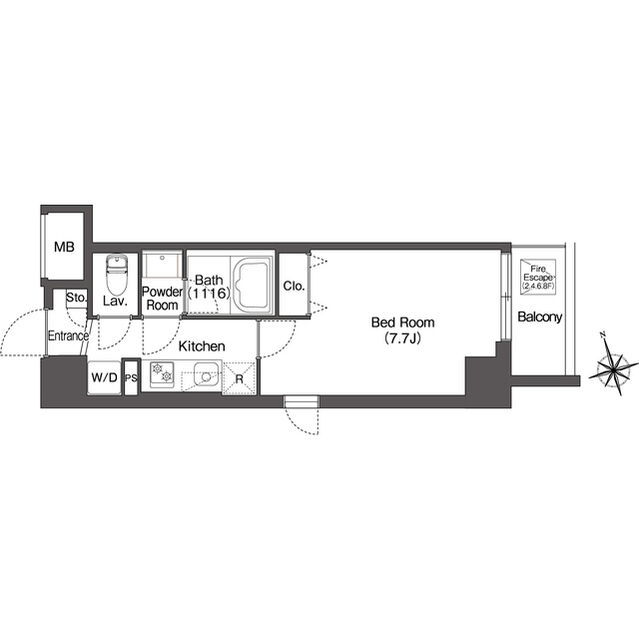
部屋間取り一覧
物件詳細
| 物件名 | グランカーサ板橋イースト | 
|---|---|
| 所在地 | 東京都北区滝野川7-20-2 | 
| 交通 | |
| 物件概要 | 埼京線『板橋駅』徒歩5分                                        「グランカーサ板橋イースト」の賃貸マンション情報です。
                                        (2025-11-01 更新) この建物は地上10階建て、築年数10年以内の物件になります。 当サイト「JR賃貸」は便利なJR線が利用できる物件を集めた専門サイトです。 「グランカーサ板橋イースト」は現在 2室の空室があり 1K、25.72㎡、11.8万円~12.1万円 のお部屋がご契約可能です。 空室情報は毎日更新しておりますが、最新の状況はお問い合わせください。 ひとり暮らし物件を探すなら新着情報がどこよりも早い「プロパティバンク」まで! | 
| 建物特徴 | |||
|---|---|---|---|
| 建物設備 | オートロック、エレベータ、宅配ボックス、駐輪場、防犯カメラ | ||
| 物件の詳細情報 | 「グランカーサ板橋イースト」の詳細情報 | ||
| 最新の賃貸情報 | |||
グランカーサ板橋イースト へのお問い合せはプロパティバンクまで
部屋情報
| 部屋 | 間取 | 面積 | 家賃 | 管理費 | 敷金 | 礼金 | 詳細 | 
|---|---|---|---|---|---|---|---|
| 0504 | 1K | 25.72㎡ | 118,000円 | 10,000円 | 1ヶ月 | 1ヶ月 | 詳細はこちら | 
| 0701 | 1K | 25.72㎡ | 121,000円 | 10,000円 | 1ヶ月 | 1ヶ月 | 詳細はこちら | 
                                ※分譲賃貸マンションは、貸主様や代理不動産業者のご希望で、それぞれのお部屋の賃料や管理費、敷金、礼金などの契約条件が変わる場合がございます。
                                また、各部屋のオーナー様次第で、設備・仕様・内装などが変更されている場合もございます。
※駐輪場・バイク置場・駐車場の正確な空き状況についてはお問合せをお願い致します。
※礼金ゼロ、フリーレント、ペット飼育可、家具付きなどのお部屋の詳細は、メールやお電話にて事前にスタッフまでご確認ください。
※ペット飼育及び事務所・SOHO可については物件の管理規約で可能になっている場合でも、各部屋の所有者様次第で禁止となっている場合がございます。
                            
                            ※駐輪場・バイク置場・駐車場の正確な空き状況についてはお問合せをお願い致します。
※礼金ゼロ、フリーレント、ペット飼育可、家具付きなどのお部屋の詳細は、メールやお電話にて事前にスタッフまでご確認ください。
※ペット飼育及び事務所・SOHO可については物件の管理規約で可能になっている場合でも、各部屋の所有者様次第で禁止となっている場合がございます。
物件マップ
※物件掲載内容と現況に相違がある場合は現況を優先と致します。
                                            このページについて
                            このページは「グランカーサ板橋イースト」の詳細情報です。
                        
 
	
 
							 
							 
							 
							 
							 
							 
							