リバーポイントタワー
up
2005 1LDK 35.1万円
更新日:2026-02-21
- 賃料
-
35.1万円
- マンション
- 間取
-
1LDK
- 共益費・管理費
- -
- 敷金
- 1ヶ月
- 礼金
- 1ヶ月
|
|
|
|
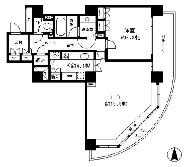
間取り図
物件画像
初期費用
| 家賃 | 敷金 | 礼金 | 仲介手数料 | ||
|---|---|---|---|---|---|
| 351,000円 | 1ヶ月 | 1ヶ月 | - | ||
|
※1.上記の初期費用には火災保険・カギ交換・保証会社利用料は含まれておりません。 ※2.こちらの初期費用計算は概算となっております。詳しい初期費用に関してはお問い合わせください。 |
|||||
物件詳細
物件説明 |
|---|
|
東京メトロ有楽町線『月島駅』徒歩6分 「リバーポイントタワー」の物件ページです。
敷金1ヶ月、 北東向き、 広さ72.69㎡のお部屋です。 <ワンルーム賃貸> 更新日:2026-02-21 |
| 所在地 | 東京都中央区佃1-11-6 |
|---|---|
| 交通 |
| 築年月 | 1989年4月 | 面積 | 72.69㎡ |
|---|---|---|---|
| 建物階数 | 地上40階(地下2階) | 部屋階数 | 20階 |
| 部屋 / 区画番号 | 2005 | 総戸 / 区画数 | |
| 向き | 北東向き | 駐車場 | お問い合わせください。 |
| 建物構造 | 重量鉄骨 | ||
| 間取 | 1LDK |
||
| 引渡 / 入居時期 | 相談 | 取引態様 | 仲介 |
| 建物特徴 | 駐車場 | ||
| 建物設備 | オートロック、エレベータ、駐輪場、防犯カメラ、ゴミ集積場 | ||
| 部屋設備 | 角部屋、バス・トイレ別、IHクッキングヒーター、システムキッチン、追い焚き、CATV、CSアンテナ、BSアンテナ、光ファイバー、温水洗浄暖房便座、浴室換気乾燥機、独立洗面台 | ||
| URL | 「リバーポイントタワー」の詳細情報はこちら | ||
| 状態 | 空き有り | ||
他の部屋情報
| 部屋 | 間取 | 面積 | 家賃 | 管理費 | 敷金 | 礼金 | 詳細 |
|---|---|---|---|---|---|---|---|
| 1305 | 1LDK | 72.69㎡ | 344,000円 | - | 1ヶ月 | 1ヶ月 | 詳細はこちら |
| 1308 | 1LDK | 72.69㎡ | 383,000円 | - | 1ヶ月 | 1ヶ月 | 詳細はこちら |
| 3310 | 2LDK | 77.19㎡ | 425,000円 | - | 1ヶ月 | 1ヶ月 | 詳細はこちら |
| 3303 | 2LDK | 75.88㎡ | 395,000円 | - | 1ヶ月 | 1ヶ月 | 詳細はこちら |
リバーポイントタワー へのお問い合せはプロパティバンクまで
物件マップ
※物件掲載内容と現況に相違がある場合は現況を優先と致します。
このページについて
このページは
「 リバーポイントタワー 」 の詳細情報です。
