クイーンパレス品川大井
up
406 1LDK 18.5万円
更新日:2025-10-08
- 賃料
-
18.5万円
- マンション
- 間取
-
1LDK
- 共益費・管理費
- 10,000円
- 敷金
- 1ヶ月
- 礼金
- 1ヶ月
|
|
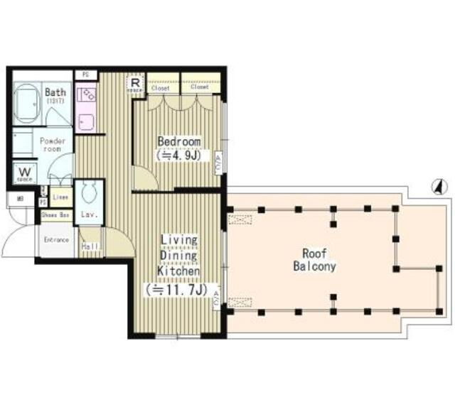
間取り図
物件画像
初期費用
家賃 | 敷金 | 礼金 | 仲介手数料 | ||
---|---|---|---|---|---|
185,000円 | 1ヶ月 | 1ヶ月 | - | ||
※1.上記の初期費用には火災保険・カギ交換・保証会社利用料は含まれておりません。 ※2.こちらの初期費用計算は概算となっております。詳しい初期費用に関してはお問い合わせください。 |
物件詳細
物件説明 |
---|
京浜東北・根岸線『大井町駅』徒歩9分 「クイーンパレス品川大井」の物件ページです。
敷金1ヶ月、 東向き、 広さ41.02㎡のお部屋です。 <ワンルーム賃貸> 更新日:2025-10-08 |
所在地 | 東京都品川区大井3-10-1 |
---|---|
交通 |
築年月 | 2018年1月 | 面積 | 41.02㎡ |
---|---|---|---|
建物階数 | 地上5階 | 部屋階数 | 4階 |
部屋 / 区画番号 | 406 | 総戸 / 区画数 | |
向き | 東向き | 駐車場 | お問い合わせください。 |
建物構造 | SRC | ||
間取 | 1LDK |
||
引渡 / 入居時期 | 相談 | 取引態様 | 仲介 |
建物特徴 | |||
建物設備 | オートロック、エレベータ、宅配ボックス、駐輪場、防犯カメラ | ||
部屋設備 | 角部屋、バス・トイレ別、ガスコンロ設置可、システムキッチン、追い焚き、CSアンテナ、BSアンテナ、フローリング、光ファイバー、TVインターホン、温水洗浄暖房便座、浴室換気乾燥機、独立洗面台 | ||
URL | 「クイーンパレス品川大井」の詳細情報はこちら | ||
状態 | 空き有り |
他の部屋情報
部屋 | 間取 | 面積 | 家賃 | 管理費 | 敷金 | 礼金 | 詳細 |
---|
クイーンパレス品川大井 へのお問い合せはプロパティバンクまで
物件マップ
※物件掲載内容と現況に相違がある場合は現況を優先と致します。
このページについて
このページは
「 クイーンパレス品川大井 」 の詳細情報です。