ブランズ四番町
up
409 2LDK 43.0万円
更新日:2025-11-30
- 賃料
-
43.0万円
- マンション
- 間取
-
2LDK
- 共益費・管理費
- -
- 敷金
- 2ヶ月
- 礼金
- 2ヶ月
|
|
|
|
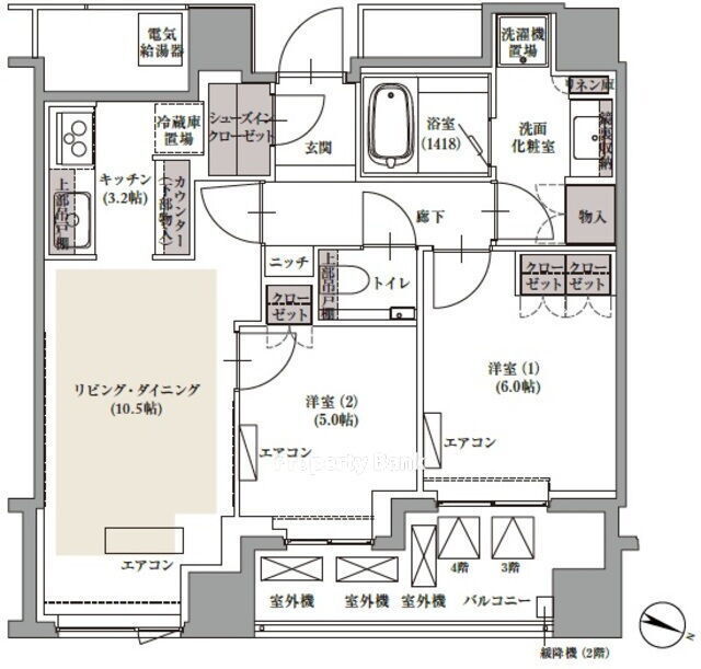
間取り図
物件画像
初期費用
| 家賃 | 敷金 | 礼金 | 仲介手数料 | ||
|---|---|---|---|---|---|
| 430,000円 | 2ヶ月 | 2ヶ月 | - | ||
|
※1.上記の初期費用には火災保険・カギ交換・保証会社利用料は含まれておりません。 ※2.こちらの初期費用計算は概算となっております。詳しい初期費用に関してはお問い合わせください。 |
|||||
物件詳細
物件説明 |
|---|
|
東京メトロ有楽町線『市ヶ谷駅』徒歩3分 「ブランズ四番町」の物件ページです。
敷金2ヶ月、 東向き、 広さ60.6㎡のお部屋です。 <ワンルーム賃貸> 更新日:2025-11-30 |
| 所在地 | 東京都千代田区四番町2-4 |
|---|---|
| 交通 |
| 築年月 | 2014年2月 | 面積 | 60.6㎡ |
|---|---|---|---|
| 建物階数 | 地上15階(地下1階) | 部屋階数 | 4階 |
| 部屋 / 区画番号 | 409 | 総戸 / 区画数 | |
| 向き | 東向き | 駐車場 | お問い合わせください。 |
| 建物構造 | SRC | ||
| 間取 | 2LDK |
||
| 引渡 / 入居時期 | 相談 | 取引態様 | 仲介 |
| 建物特徴 | 駐車場 | ||
| 建物設備 | オートロック、エレベータ、宅配ボックス、駐輪場、バイク置場、防犯カメラ | ||
| 部屋設備 | 分譲賃貸、バス・トイレ別、IHクッキングヒーター、システムキッチン、追い焚き、CATV、CSアンテナ、BSアンテナ、フローリング、光ファイバー、床暖房、TVインターホン、温水洗浄暖房便座、浴室換気乾燥機、独立洗面台、食器洗い乾燥機、ディスポーザー | ||
| URL | 「ブランズ四番町」の詳細情報はこちら | ||
| 状態 | 空き有り | ||
他の部屋情報
| 部屋 | 間取 | 面積 | 家賃 | 管理費 | 敷金 | 礼金 | 詳細 |
|---|
ブランズ四番町 へのお問い合せはプロパティバンクまで
物件マップ
※物件掲載内容と現況に相違がある場合は現況を優先と致します。
このページについて
このページは
「 ブランズ四番町 」 の詳細情報です。
