ノゾミオ赤羽                
                                    up
                                
                    203                    1K                    10.0万円                
                
                    更新日:2025-11-04                
            
            - 賃料
 - 
                                            10.0万円
 - マンション
 - 間取
 - 
                                            1K
 - 共益費・管理費
 - 7,000円
 - 敷金
 - 0ヶ月
 - 礼金
 - 1ヶ月
 
| 
                                         | 
                                
| 
                                         | 
                                
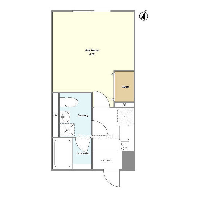
間取り図
物件画像
初期費用
| 家賃 | 敷金 | 礼金 | 仲介手数料 | ||
|---|---|---|---|---|---|
| 100,000円 | 0ヶ月 | 1ヶ月 | - | ||
| 
                                    ※1.上記の初期費用には火災保険・カギ交換・保証会社利用料は含まれておりません。 ※2.こちらの初期費用計算は概算となっております。詳しい初期費用に関してはお問い合わせください。  | 
                            |||||
物件詳細
                                    物件説明 | 
                            
|---|
| 
                                    京浜東北・根岸線『赤羽駅』徒歩8分                                    「ノゾミオ赤羽」の物件ページです。
                                     敷金0ヶ月、 -向き、 広さ25.02㎡のお部屋です。 <ワンルーム賃貸> 更新日:2025-11-04  | 
                            
| 所在地 | 東京都北区赤羽南2-6-11 | 
|---|---|
| 交通 | 
| 築年月 | 2018年11月 | 面積 | 25.02㎡ | 
|---|---|---|---|
| 建物階数 | 地上4階 | 部屋階数 | 2階 | 
| 部屋 / 区画番号 | 203 | 総戸 / 区画数 | |
| 向き | -向き | 駐車場 | お問い合わせください。 | 
| 建物構造 | SRC | ||
| 間取 | 1K | 
                            ||
| 引渡 / 入居時期 | 相談 | 取引態様 | 仲介 | 
| 建物特徴 | |||
| 建物設備 | オートロック、宅配ボックス、駐輪場 | ||
| 部屋設備 | バス・トイレ別、ガスコンロ設置可、システムキッチン、CSアンテナ、BSアンテナ、フローリング、TVインターホン、温水洗浄暖房便座、浴室換気乾燥機、独立洗面台 | ||
| URL | 「ノゾミオ赤羽」の詳細情報はこちら | ||
| 状態 | 空き有り | ||
他の部屋情報
| 部屋 | 間取 | 面積 | 家賃 | 管理費 | 敷金 | 礼金 | 詳細 | 
|---|
ノゾミオ赤羽 へのお問い合せはプロパティバンクまで
物件マップ
※物件掲載内容と現況に相違がある場合は現況を優先と致します。
                このページについて
                        このページは
                        「                        ノゾミオ赤羽                        」 の詳細情報です。
                    
	